Neubauprojekt
Weberrütistrasse 27
8833 Samstagern
Kanton Zürich
ZURÜCK ZUR ÜBERSICHT
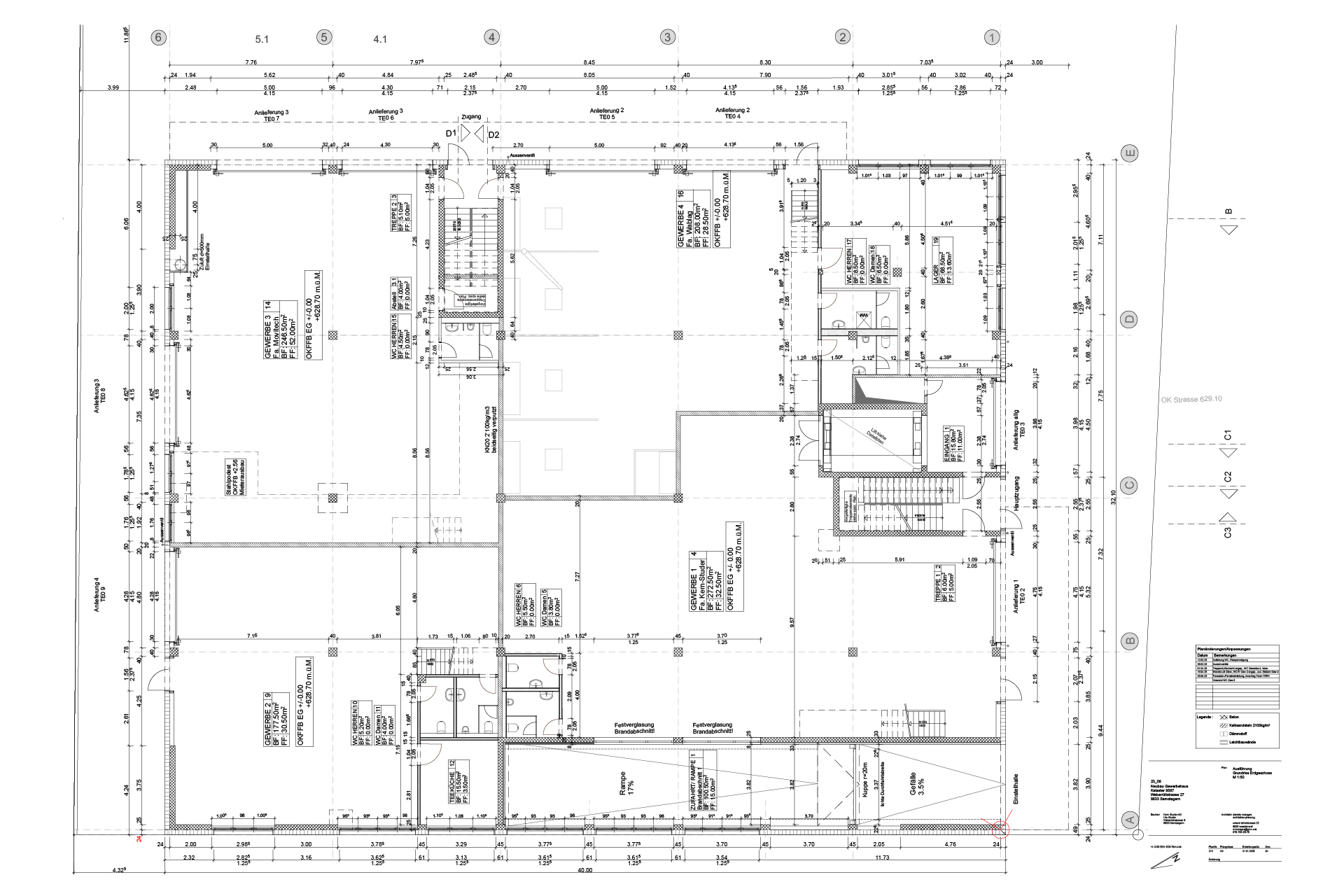
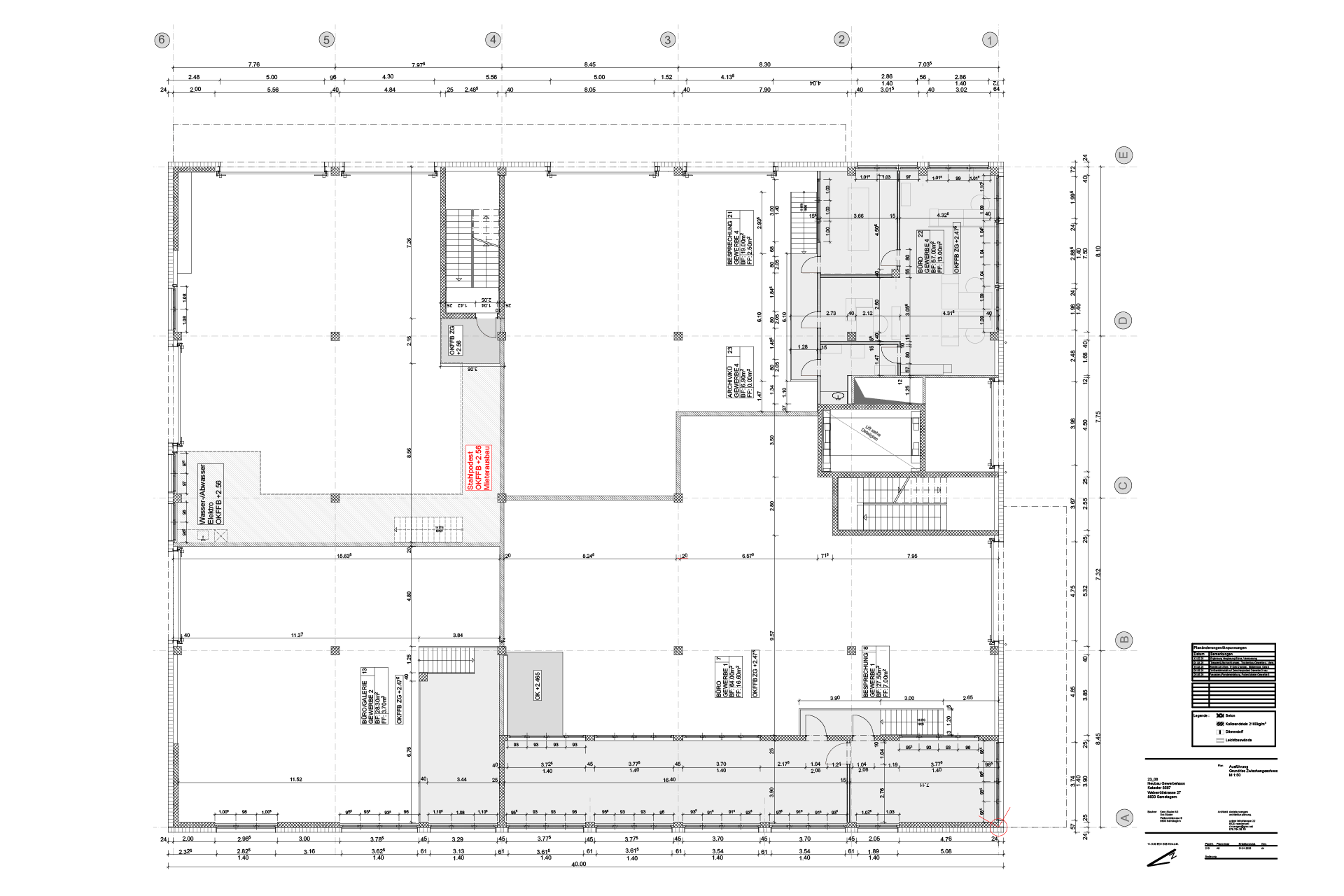
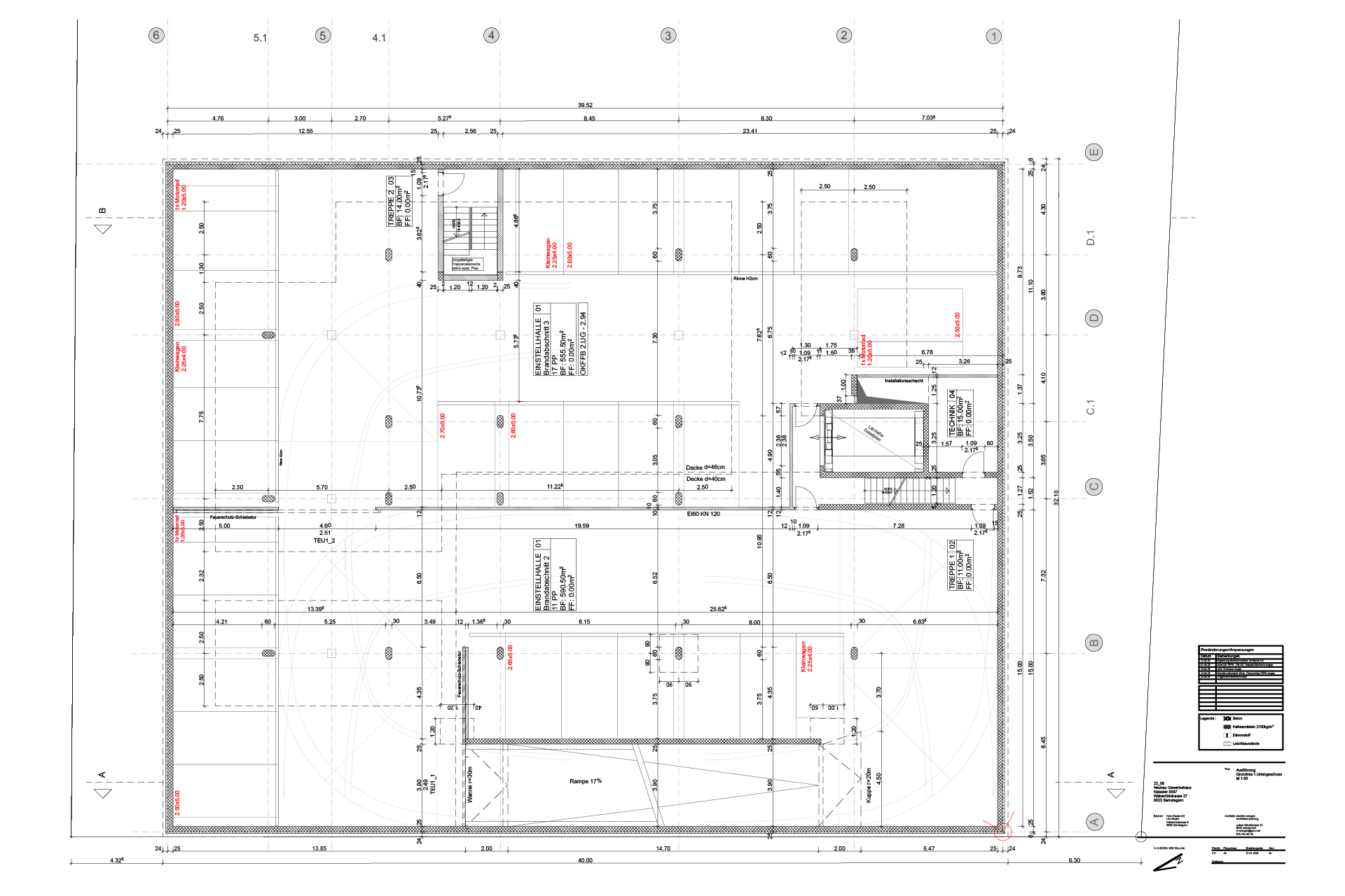
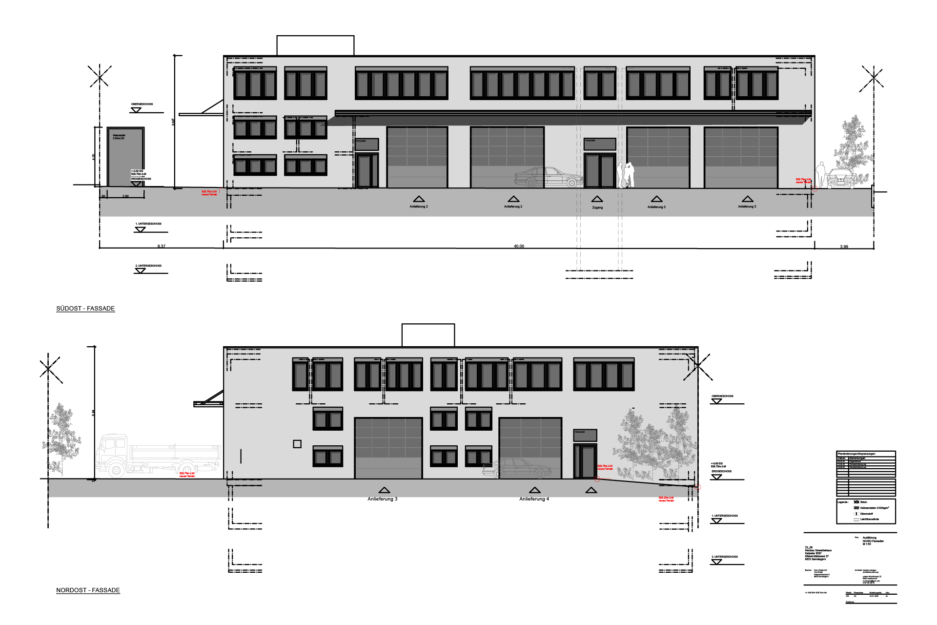
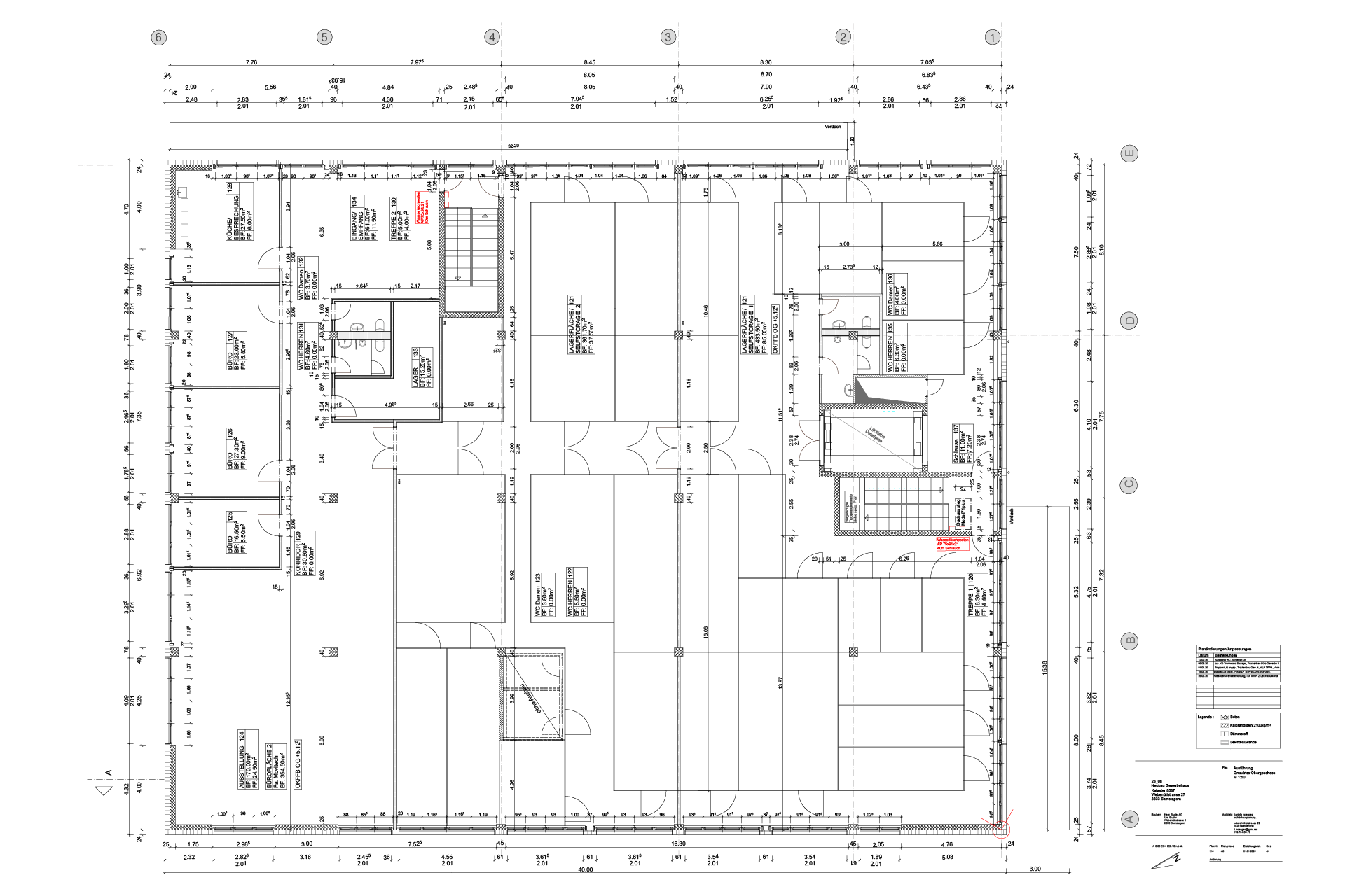
Eckdaten zum Neubauprojekt Weberrütistrasse 27
| Gewerbebau |
5-geschossig |
| Baustart | 2025 |
| Personen-/Materiallift | Pers./Ware 3,2 t 1,8 x 4,0 x 2,5 m (B/T/H) |
| Heizung | Wärmepumpe, Photovoltaik |
| Verladerampe | Nein |
| Autobahn | A3 Richterswil: 2,4 km |
| ÖV/Fuss | SBB Samstagern: 0,6 km |
| Grundfläche | Bodenbelastung | Raumhöhe | vorgesehen für | |
| UG 2 | 1280 m² | 1000 kg/m² | 2,4 m | Parking |
| UG 1 | 1280 m² | 1000 kg/m² | 2,4 m | Parking |
| EG | 1200 m² | 1500 kg/m² | 4,8 m | Gewerbe |
| ZG | 200 m² | 750 kg/m² | 2,3 m | Gewerbe/Büros |
| OG | 1280 m² | 750 kg/m² | 3,0 m | Gewerbe/Büros |
Kontaktieren Sie uns.
+41 44 783 22 44
Kern Studer Liegenschaften
Weberrütistrasse 9
CH - 8833 Samstagern